Neuer Auftrag in Winnenden
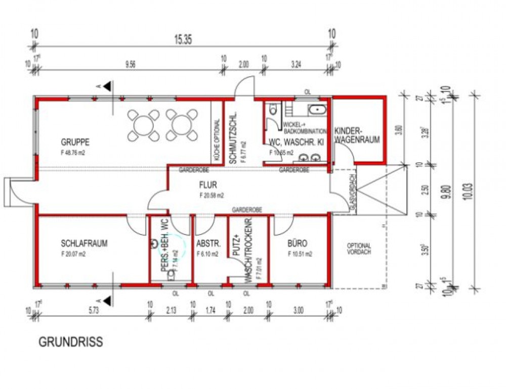
Zehn Betreuungsplätze für Kinder unter drei Jahren sollen in Winnenden entstehen. Das Gebäude werden wir in unserer MRZ-Bauweise ausführen.
Wir freuen uns auf eine Baustelle vor unserer Haustür.
Zehn Betreuungsplätze für Kinder unter drei Jahren sollen in Winnenden entstehen. Das Gebäude werden wir in unserer MRZ-Bauweise ausführen.
Wir freuen uns auf eine Baustelle vor unserer Haustür.